Leave a Message

Thank you for your message. We will be in touch with you shortly.

Explore Our Properties

Property Description

Set on nearly two level, usable acres in the heart of Milton, this exceptional property is truly all about the land. Zoned AG1 (hobby farm), it offers the rare opportunity to keep animals while enjoying privacy, flexibility, and space--just minutes from GA-400, downtown Alpharetta, and Avalon.

Fully fenced and framed by beautiful hardwood trees, the property showcases exceptional landscaping, raised garden beds, and expansive level ground--ideal for recreation, pasture, additional gardens, or future expansion. A 20-foot well providing crystal-clear, high-quality water adds tremendous value and functionality for gardening, animals, or future improvements. A newly installed pool is already in place, creating an immediate outdoor retreat while still leaving ample room to design your ultimate estate setting.

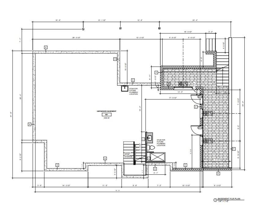
The current owner was going to build their dream home and had a job change. They can provide a full set of architectural drawings and approved engineering plans, thoughtfully designed and ready for permitting--allowing a buyer to bypass much of the preliminary planning process and fast-track the creation of a stunning custom estate. Plans are complete and ready to submit to the City of Milton immediately after closing.

Utilities are established on the property, and an existing home currently sits on the land--offering the option to renovate or remove and build a custom dream home tailored entirely to your vision.

The circular driveway provides a graceful approach and enhances the estate-like presence of this remarkable homesite. Private, versatile, and increasingly rare in Milton, this is a unique opportunity to secure nearly two acres of prime, usable land in one of the area's most sought-after locations--ready to become whatever you imagine next.

Overview

Property Status
Active Under Contract
Lot Size
1.67 Acres
MLS ID
7720868
Property Type
Land
Year Built
1980

Features & Amenities

Neighborhood
Milton
Architecture Styles
Traditional
Water Frontage
None
View Description
Trees/Woods
Stories
3
Utilites
Cable Available, Electricity Available, Natural Gas Available, Phone Available, Water Available
Lot Features
Level, Private
Security Features
None
Elementary School
Summit Hill
Middle School
Hopewell
High School
Cambridge
Sales Price
$799,900
Real Estate Tax
$3,831/yr
Zoning
AG1

Downloads

15860 Thompson Road

Schedule a Tour

We would love to help you see this beautiful home! As a full-service brokerage, we can help you tour. Please submit an offer, and answer questions about the buying process.

Thank you

for your interest in 15860 Thompson Road, Milton, GA 30004

15860 Thompson Road
Navigate
Milton

Explore Milton

Milton is a tranquil neighborhood in Milton, GA, offering countryside charm and modern convenience. It features exceptional schools and pristine parks.

read more

Mortgage Calculator

Estimate your monthly mortgage payment, including the principal and interest, property taxes, and HOA. Adjust the values to generate a more accurate rate.
$0,000 Your Payment 20 15 65
$0,000 Your Payment

I'm Interested In

15860 Thompson Road

or
  • CallReid Casey

    License #283778

    (770) 560-4493
  • Explore Our

    Featured Properties

    • 800 Owens Lake Road For Sale

      $2,990,000

      800 Owens Lake Road, Milton, GA 30004

      • 6 Beds
      • 8 Baths
      • 8,629 Sq.Ft.
    • 120 Roxbury Row For Sale

      $1,980,000

      120 Roxbury Row, Milton, GA 30004

      • 6 Beds
      • 8 Baths
      • 5,970 Sq.Ft.
    • 2139 Mcfarlin Lane Pending

      $1,450,000

      2139 Mcfarlin Lane, Milton, GA 30004

      • 6 Beds
      • 5 Baths
      • 4,330 Sq.Ft.
    • 13770 Birmingham Highway For Sale

      $1,390,000

      13770 Birmingham Highway, Milton, GA 30004

      • 5 Beds
      • 4 Baths
      • 4,885 Sq.Ft.
    • 14040 Providence Road For Sale

      $1,150,000

      14040 Providence Road, Milton, GA 30004

    • 15860 Thompson Road Active Under Contract

      $799,900

      15860 Thompson Road, Milton, GA 30004

      • 2,248 Sq.Ft.
    View All Properties

    Follow Us On Instagram